当前位置:
家具网>
家具新闻>
展会新闻>
详情
手机版最新留言:
使用手机微信“扫一扫”功能,扫描以下二维码,即可将本文分享到“朋友圈”中。
2024-07-01 编辑:中国家具网 来源:网络 浏览数:7203
从人的角度起笔设计,以简单纯粹的自然本质,搭建起容纳一切动静的日光框架,也细心揉合宠物机能,使夫妻俩饲养的虎斑猫 也能拥有自在步调,并以设计手法平衡风水美学,落实心中的理想场景。

对于健康的重视,也细藏于空间之中,在施工阶段,即将木作角料全面进行除甲醛工序,亦致力采用系统板材围塑家中场景,减少粉尘、降低甲醛与 VOC 的污染,从看不见的细节,小心呵护全家人。

一整排无断点的窗光,加上穿透的空间配置,当返家后,即能一眼看透餐厅、客厅与书房,宛若极目远眺般,将家景尽收眼底,日光也毫不吝啬的倾洒于各角落,日日晴日,正是属于这个家的日常。
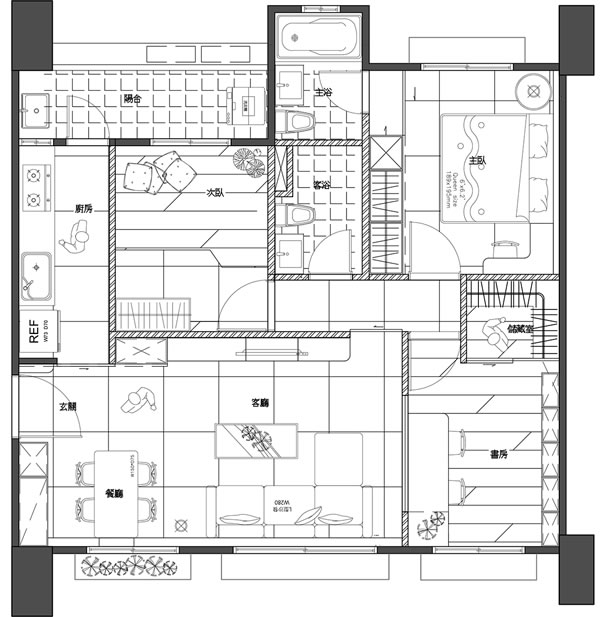
个案基本资料
桃园 / 新成屋 / 电梯房/ 72.6 平方米/ 格局 3 房 2 厅 2 卫 / 居住人数 2 大 1 猫

< 屋主需求 >
・ 工作缘故,须拥有书房
・ 讲究符合风水的配置
・ 将宠物机能自然融于家中
个别空间
1. 客厅设计:
属于日光的气味,漫散在家中各角落,温暖了感官、也清晰了日常,从基地的先天条件开始起笔,深知采光是本案的优势,却也存有西晒的隐忧,于是采用塑木百叶窗调节光线的份量与角度。

凭借材质性质,无须担忧潮湿热度导致窗框变质,本身亦具备良好清洁性,杜绝尘灰过敏的问题,也能缓和电视反光的情况,从改善微小的细节,使生活品质大幅提升。

沿着窗源拉出一道温润木质背墙,切合沙发有靠山的风水角度,也是公共领域的隐性介质,并仔细裁定 15~17 公分的宽幅,成为猫咪自在穿梭的小径,看看窗外小鸟、晒晒温暖冬阳,取得人与宠物的恰好平衡。
2. 餐厅设计:
一根猫抓柱托天竖立,从垂直角度落下空间分际,相映着窗边的日光猫道,使猫咪的生活路径自然生成,「对猫咪来说,不用刻意的强调或隐藏,就是一种不打扰的温柔。」谈起宠物的机能配置,设计师分享说道。

一桌四椅的温暖配置,藏着许多用心细节,于窗侧背板退出一方餐边柜,提前设置好电源插座,使调味瓶罐有序摆放,也能与三五好友一起围桌吃锅,围塑美好的餐叙情境。

与此同时,当女主人在书房工作时,男主人则能于餐桌处理公事,使彼此相伴不相绊,此外,鉴于餐厅毗邻大门,将餐边柜揉合衣帽柜,即能随手挂放外衣、放置包包与安全帽,形成自然而然的返家动线。

3. 书房设计:
属于女主人的私人境地,以最小幅度的调整,释放空间最大效益,在审视格局关系后,让渡局部主卧空间,开辟出一间独立储藏室,扩增收纳机能,并且依据卷宗尺寸裁定书桌尺度,符合平时阅卷整理的情况。

依序悉心看待风水元素,向著桌前开一口窗,以敞阔明朗的视域,象徵前途的顺遂明亮;并仔细根据摆件方位调节书架形式,采用铁件+系统板材框筑轻盈错落之姿,蕴藏平步青云的美好寓意。


4. 主卧设计:
简单纯净的画面,源自以混凝土镘抹出手感温度,相伴温润木质背板,调和出自然质朴气味,接着对称配置一对床头壁灯与电源插座,使夫妻俩分别调节光源强弱,各自拥有温和的睡眠氛围。

依循格局条件,量身定制一道梳妆柜,不浪费分毫空间,使空间效益最大化,接续沿着立面推出壁柜,同步涵盖衣柜与叠柜用途,无论一季一次使用的凉被冬被,亦或日常衣饰都能分门别类的归纳。

另外,也掺揉了滑门机能,以二进式动线抚平厕门突兀、缓解湿气漫散,穿梭向前,依循柜体深度砌成一座侧立格柜,使卫浴备品妥善摆放,将一切生活杂物退隐无形。

5. 次卧设计:
既是客房也是未来孩童房,因此采取和室形制确保灵活性,以系统板材搭建起地台,挹注上掀设计扩充收纳机能,少了制式寝室佈局,使空间用途多了无限可能。

团队亦细心顾及常规的平台高度是 30~40 公分,趋近二段阶梯的落差,对幼童来说并不友善,于是裁制一道楼梯作为缓衝衔接,预防小孩跌落磕碰的隐忧,大人也能轻松的拾级而上。
< 总体规划 >
6. 收纳规划:
依据生活路径调配柜体机能,于大门整合衣帽柜与餐边柜用途,也新闢一间储藏室,使各种大型物件或未来的生育用品都能妥帖藏放;且不放过任何角落,分别采取叠柜与上掀地台设计,争取最大化的收纳容量。

7. 动线规划:
新成屋本身就有良好的格局效益,原定的公私分界也符合夫妻俩的生活型态,加上家庭成员简单的缘故,仅有微幅调整主卧格局,于此提增空间使用率,依序搭配玻璃滑门维持穿透感。

8. 天花 / 灯光设计:
减少一切複杂线条、呈现简淨的天花画面,即是夫妻俩的主要诉求,因此采用嵌灯当作主照明,透过有序的排列分佈,清晰定位出各场域关係,同步调配趋近自然光的 4000K 色温,围塑宛若暖阳映照的温煦情境。

「人,也是有趋光性的。」于是,严选源自台湾的原创灯饰品牌 Moodmu 沐睦设计灯饰,以名为《POISE 圜》的灯饰当作餐吊灯,凭藉温润木质与环形光线,成为凝聚情感的一道暖心指引。
9. 建材挑选:
超耐磨木地板、乐土、塑木百叶窗、长虹玻璃、系统板材、铁件
10. 色彩计画:
鉴于夫妻俩所罗列的家具款式,多数以榉木材质为主,于是从中筛选出温润橡木色,以不浓不淡的原生本色调和自然气息,也顾及日光映射后的色感变化,采用大地色系平衡明度,使空间调性温和不躁,接著佐配一张青绿沙发当作主体,相映著天然木色沁出清爽明朗格调。

想了解这个项目,请联系我!
我想加盟,请将项目的资料发给我。
请问我所在地区有加盟商了吗?
想了解此项目的加盟流程,请联系我!
请问加盟此项目需投资多少钱?
版权与免责声明:
凡未注明稿件来源的内容均为转稿或由企业用户注册发布,本网转载出于传递更多信息的目的,如转稿涉及版权问题,请作者联系我们处理。我们对页面中展示内容的真实性、准确性和合法性均不承担任何法律责任。
如内容信息对您产生影响,请及时联系我们修改或删除。
15811192007

今天已经有 234 人获取加盟资料
激发新活力,释放新动能,大咖齐聚,闪耀门展-2023中国国际门业展览会(北京门展),中国木门网、中居联高端访谈栏目专访鑫雅迪负离子木门营销总监刘志峰。
激发新活力,释放新动能,大咖齐聚,闪耀门展-2023中国国际门业展览会(北京门展),中国木门网、中居联高端访谈栏目专访洋诚智慧木门总经理王智。
激发新活力,释放新动能,大咖齐聚,闪耀门展-2023中国国际门业展览会(北京门展),中国木门网、中居联高端访谈栏目专访戴克爱家高定刘杰。
激发新活力,释放新动能,大咖齐聚,闪耀门展-2023中国国际门业展览会(北京门展),中国木门网、中居联高端访谈栏目专访品桥木门总经理隗治洪
激发新活力,释放新动能,大咖齐聚,闪耀门展-2023中国国际门业展览会(北京门展),中国木门网、中居联高端访谈栏目专访兄弟木门营销总经理鲍壮。
2024门业及定制家居品牌峰会暨中居联杯·2023年度木门及门墙柜整装十大品牌表彰盛典圆满落幕
官方:7月7月份全国建材家居景气指数BHI再降
A家、诗尼曼、亚丹、穗宝、金意陶、伟业、雪宝等,在纽约时代广场为中国奥运军团加油的家居品牌
家居建材品牌打响奥运营销战
新国策下木制家具如何消费升级
让加盟更诚信 让选择更放心
立即咨询做有权威的品牌